найти
Архитектурное освещение
Акцентное освещение
Заливающее освещение
Контурное освещение
Грунтовое освещение и прожекторы
Опции и аксессуары
Уличное освещение
Дорожное и дворовое освещение
Парковое освещение
Комплексные решения
Ландшафтное освещение
Настенное освещение
Опоры и закладные
Интерьерное освещение
Дизайнерские светильники
Светильники из коллекции DESIGN — идеальный баланс и коллаборация с разными стилями интерьера
Простые формы
Серии светильников для освещения больших площадей коммерческого и офисного пространства
XXL
Эксклюзивные световые инсталляции выступающие арт объектом интерьера
Промышленное освещение
ЖКХ светильники
Прожекторы
Складские светильники
Офисные светильники
Торговые светильники
Взрывозащищенные светильники
Низковольтные светильники
Аварийные светильники
Опции и аксессуары
Малые архитектурные формы
Dog Box
Автомобильные ограничители
Велопарковки
Зонирующие перегородки
Качели
Комплекты уличной мебели
Контейнерные площадки
Корзины для кондиционеров
Кресла
Лавочки
Парклеты
Парковочные столбики
Перголы
Приставные столики
Приствольные решетки
Скамейки
Столы
Урны
Шезлонги
Кашпо и вазоны
Кашпо интерьерные
Вазоны
Алюминиевые профили
Профили для потолков
Светодиодные профили
Алюминиевые трубы
Квадратные алюминиевые трубы
Круглые алюминиевые трубы
Прямоугольные алюминиевые трубы
отправить заявку на индивидуальное изготовление
8 800 550-76-96
задать вопрос
вход
отложенные
сравнение товаров
Информация
Реквизиты
Портфолио
Партнерам
О Производстве
Услуги
Каталоги PDF
КАТАЛОГ
ПОРТФОЛИО
ПАРТНЕРАМ
О ПРОИЗВОДСТВЕ
8 800 550-76-96
Главная
/
Услуги
/
Светотехнический расчет
/
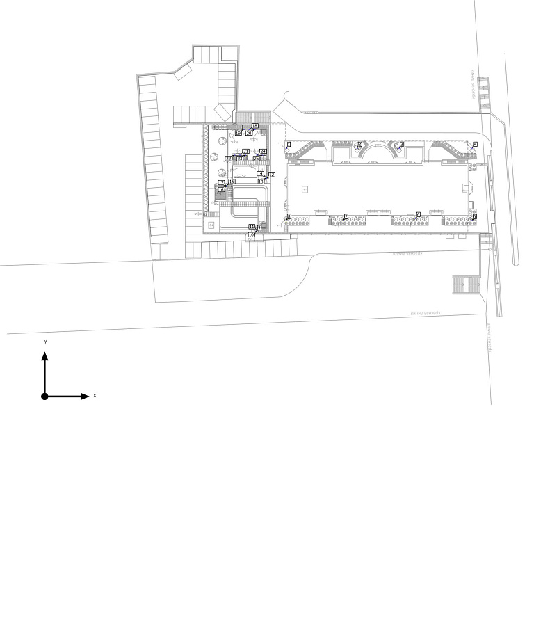
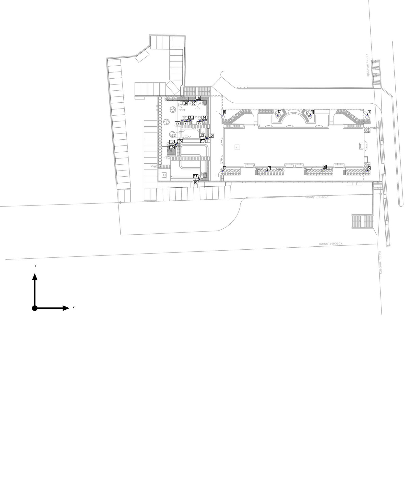
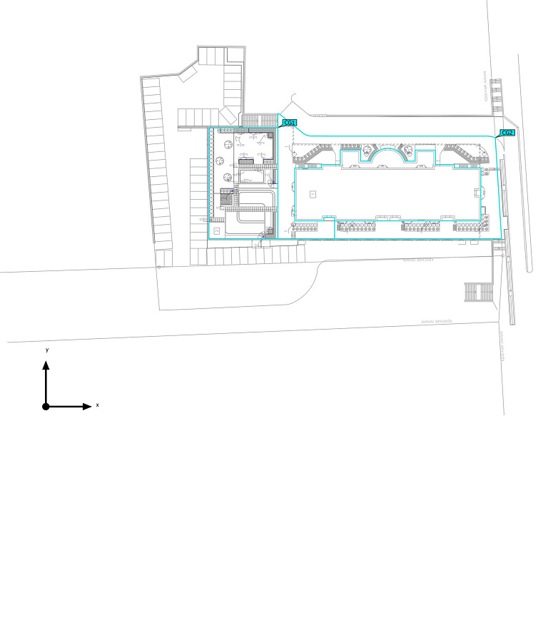
Освещение ЖК Булычёв г. Киров, ул. Р. Люксембург
Освещение ЖК Булычёв г. Киров, ул. Р. Люксембург
В ПРОЕКТЕ ИСПОЛЬЗОВАЛИСЬ
Акцентный светильник SVETHOLL Баффи квадрат с проточкой
Подробнее
Группа товара
Акцентный светильник
Тип крепления
накладной / декоративная чаша / поворотный кронштейн
Длина, мм
58 / 78
Ширина, мм
58 / 78
Высота, мм
160 / 180
Бренд
SVETHOLL
Степень защиты
IP65
Частота напряжения, Гц
50
Источник света
LED
Световой поток, lm
510 / 1020 / 1280 / 1920
Коэффициент пульсации
<5%
Мощность, Вт
4 / 8 / 10 / 15
Угол свечения, °
7 / 10 / 15 / 30 / 45 / 60 / 15х60
Световая эффективность, lm/w
128
Материал
алюминий
Класс электробезопасности
I
Предельный диапазон входных напряжений, В
100-240
Климатическое исполнение
УХЛ1
Страна производства
Россия
Входное напряжение, В
220
Температурный диапазон эксплуатации, В
-40ºС...+40ºС
Цветовая температура, K
3000 / 4000 / 5000 / RED / GREEN / BLUE / AMBER
Индекс цветопередачи, CRI
>80
Срок службы, ч
50000
Коэффициент мощности
≥0.95
Пусковой ток
70А
Гарантия
5 лет
Подписаться
Нет в наличии
Акцентный светильник SVETHOLL Баффи квадрат
Подробнее
Группа товара
Акцентный светильник
Тип крепления
накладной / декоративная чаша / поворотный кронштейн
Длина, мм
58 / 78
Ширина, мм
58 / 78
Высота, мм
160 / 180
Бренд
SVETHOLL
Степень защиты
IP65
Частота напряжения, Гц
50
Источник света
LED
Световой поток, lm
510 / 1020 / 1280 / 1920
Коэффициент пульсации
<5%
Мощность, Вт
4 / 8 / 10 / 15
Угол свечения, °
7 / 10 / 15 / 30 / 45 / 60 / 15х60
Световая эффективность, lm/w
128
Материал
алюминий
Класс электробезопасности
I
Предельный диапазон входных напряжений, В
100-240
Климатическое исполнение
УХЛ1
Страна производства
Россия
Входное напряжение, В
220
Температурный диапазон эксплуатации, В
-40ºС...+40ºС
Цветовая температура, K
3000 / 4000 / 5000 / RED / GREEN / BLUE / AMBER
Индекс цветопередачи, CRI
>80
Срок службы, ч
50000
Коэффициент мощности
≥0.95
Пусковой ток
70А
Гарантия
5 лет
Подписаться
Нет в наличии
Акцентный светильник SVETHOLL Баффи с проточкой
Подробнее
Группа товара
Акцентный светильник
Тип крепления
накладной / декоративная чаша / поворотный кронштейн
Высота, мм
160 / 180
Диаметр, мм
60 / 80
Бренд
SVETHOLL
Степень защиты
IP65
Частота напряжения, Гц
50
Источник света
LED
Световой поток, lm
510 / 893 / 1275 / 1785
Коэффициент пульсации
<5%
Мощность, Вт
4 / 7 / 10 / 14
Угол свечения, °
7 / 10 / 15 / 30 / 45 / 60 / 15х60
Световая эффективность, lm/w
128
Материал
алюминий
Класс электробезопасности
I
Предельный диапазон входных напряжений, В
100-240
Климатическое исполнение
УХЛ1
Страна производства
Россия
Монтаж
Входное напряжение, В
220
Температурный диапазон эксплуатации, В
-40ºС...+40ºС
Цветовая температура, K
3000 / 4000 / 5000 / RED / GREEN / BLUE / AMBER
Индекс цветопередачи, CRI
>80
Срок службы, ч
50000
Коэффициент мощности
≥0.95
Пусковой ток
70А
Гарантия
5 лет
Подписаться
Нет в наличии
Акцентный светильник SVETHOLL Баффи
Подробнее
Группа товара
Акцентный светильник
Тип крепления
поворотный кронштейн / накладной / декоративная чаша
Высота, мм
160 / 180
Диаметр, мм
60 / 80
Бренд
SVETHOLL
Степень защиты
IP65
Частота напряжения, Гц
50
Источник света
LED
Световой поток, lm
510 / 893 / 1275 / 1785
Коэффициент пульсации
<5%
Мощность, Вт
4 / 7 / 10 / 14
Угол свечения, °
7 / 10 / 15 / 30 / 45 / 60 / 15х60
Световая эффективность, lm/w
128
Материал
алюминий
Класс электробезопасности
I
Предельный диапазон входных напряжений, В
100-240
Климатическое исполнение
УХЛ1
Страна производства
Россия
Входное напряжение, В
220
Температурный диапазон эксплуатации, В
-40ºС...+40ºС
Цветовая температура, K
3000 / 4000 / 5000 / RED / GREEN / BLUE / AMBER
Индекс цветопередачи, CRI
>80
Срок службы, ч
50000
Коэффициент мощности
≥0.95
Пусковой ток
70А
Гарантия
5 лет
Подписаться
Нет в наличии
Парковый светильник SVETHOLL Каллисто
Подробнее
Группа товара
Парковый светильник
Длина, мм
1040
Ширина, мм
100
Высота, мм
4000 / 5000 / 6000
Бренд
SVETHOLL
Степень защиты
IP65
Частота напряжения, Гц
50Hz
Источник света
LED
Световой поток, lm
4230 / 7050 / 14100
КСС
155° х 60°
Мощность, Вт
30 / 50 / 100
Угол свечения, °
155х60
Материал
алюминий / сталь
Входное напряжение, В
185-264V
Температурный диапазон эксплуатации, В
.-40 ...+40С
Цветовая температура, K
3000 / 4000 / 5000
Индекс цветопередачи, CRI
>85
Срок службы, ч
50000 часов
Коэффициент мощности
≥0.95
Пусковой ток
70А
Гарантия
5 лет
Материал
алюминий
сталь
Подписаться
Нет в наличии
Грунтовый светильник SVETHOLL Баффи грунт
Подробнее
Группа товара
Грунтовый светильник
Тип крепления
встраиваемый
Высота, мм
130 / 135 / 126
Диаметр, мм
100 / 160 / 210
Бренд
SVETHOLL
Степень защиты
IP65
Источник света
LED
Световой поток, lm
660 / 1980 / 3960 / 5500
Мощность, Вт
6 / 18 / 36 / 50
Угол свечения, °
7 / 10 / 15 / 30 / 45 / 60 / 15х60
Входное напряжение, В
220 ±20
Цветовая температура, K
3000 / 4000 / 5000
Индекс цветопередачи, CRI
>80
Гарантия
5 лет
Подписаться
Нет в наличии
ПРОЕКТЫ
+
Сквер дружбы
+
ЖК УНО
+
Парк
+
Аэропорт им. А.Г. Николаева
+
ЖК Символ
+
ЖК Квартал Стрижи
+
ДК Химиков
+
ЖК Яратам
+
ЖК Движение
+
ЖК Репинские пруды
+
ЖК Заповедный
+
ЖК Зенлайф
+
ЖК Новобережье
+
ЖК Хаят
+
ЖК Острова
+
ЖК Атмосфера
+
ЖК Аристократ
+
ЖК Семейный
+
ЖК Кипрея
+
ЖК Акватория
КАТАЛОГ ПРОДУКЦИИ
Архитектурное освещение
Акцентное освещение
Заливающее освещение
Контурное освещение
Грунтовое освещение и прожекторы
Опции и аксессуары
Уличное освещение
Дорожное и дворовое освещение
Парковое освещение
Комплексные решения
Ландшафтное освещение
Настенное освещение
Опоры и закладные
Интерьерное освещение
Дизайнерские светильники
Светильники из коллекции DESIGN — идеальный баланс и коллаборация с разными стилями интерьера
Простые формы
Серии светильников для освещения больших площадей коммерческого и офисного пространства
XXL
Эксклюзивные световые инсталляции выступающие арт объектом интерьера
Промышленное освещение
ЖКХ светильники
Прожекторы
Складские светильники
Офисные светильники
Торговые светильники
Взрывозащищенные светильники
Низковольтные светильники
Аварийные светильники
Опции и аксессуары
Малые архитектурные формы
Dog Box
Автомобильные ограничители
Велопарковки
Зонирующие перегородки
Качели
Комплекты уличной мебели
Контейнерные площадки
Корзины для кондиционеров
Кресла
Лавочки
Парклеты
Парковочные столбики
Перголы
Приставные столики
Приствольные решетки
Скамейки
Столы
Урны
Шезлонги
Кашпо и вазоны
Кашпо интерьерные
Вазоны
Алюминиевые профили
Профили для потолков
Светодиодные профили
Алюминиевые трубы
Квадратные алюминиевые трубы
Круглые алюминиевые трубы
Прямоугольные алюминиевые трубы
Информация
Реквизиты
Портфолио
Партнерам
О Производстве
Услуги
Каталоги PDF
Контакты
Отдел продаж:
8 800 550-76-96
info@svetholl.ru
г.Казань, Автосервисная 10
HR отдел:
8 927 424-56-19
Маркетинг:
8 (927) 489 75 70
marketing@svetholl.ru
отправить заявку на индивидуальное изготовление
2026 © Светхолл
Публичная оферта
Пользовательское соглашение
Политика конфиденциальности
Часто ищут